long life house
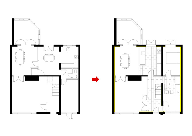
This project focuses on the long life of a home, to accommodate the changing needs of a family. It involved a full refurbishment of a1970s semi-detached house, updating services, insulation as well as reconfiguring the layout, with new internal design. The house is opened up from front to back, increasing light and views throughout. The careful addition of bespoke furniture meets the daily needs of a home, and adds to the new sense of spaciousness in the house.

{image 3}


